Hillside Twins

Pittsburgh, PA

Our foray into self-initiated development projects came by chance. We found a unique lot that had been left untended, offering us an opportunity to design in favor of the site specific challenges. Our split level homes take advantage of the steep slope, working with the terrain to reveal at every level tremendous views across the city and great exposure to daylight. The houses are designed with respect to the neighborhood context, maintaining a low profile at the street front while expanding to a generous vertical extension at the rear of the house.

One of our primary motivations for developing the project is to use the houses as a case study for integrating sustainability solutions mindfully and holistically through a methodology of responsible design. Our goal is to establish a prototype project for single family houses that we would be able to deploy elsewhere.

front elevation.JPG
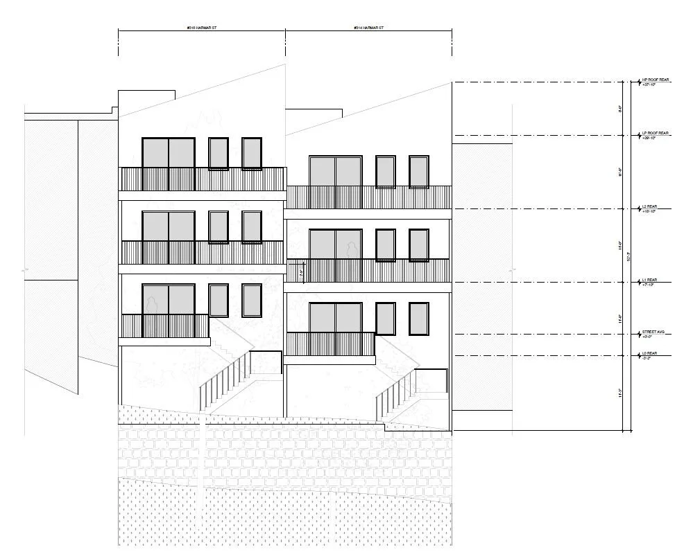
rear elevation.JPG
[1] A-310 SECTION B.jpg
lower floor plan.JPG
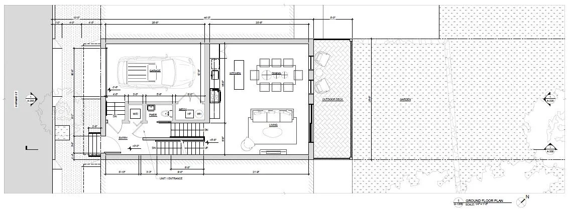
ground floor plan.JPG
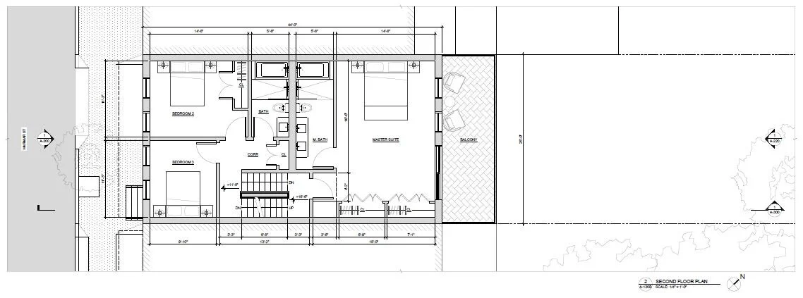
second floor plan.JPG
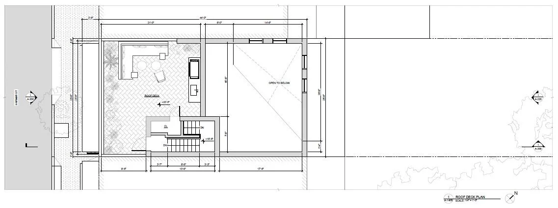
roof deck plan.JPG
roof plan.JPG
street frontage sketch copy.jpg
Next
Next

Garden House